Reforma integral de vivienda
LUGAR Y AÑO
Piloña, Asturias. 2018
CATEGORÍA
Proyecto, Dirección de obra, coordinación de seguridad y salud y asesoría a la bioconstrucción.
DESCRIPCIÓN
Un edificio con reparaciones puntuales para el mantenimiento de la estabilidad del mismo pero en mal estado de conservación.
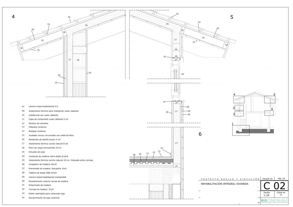
Se decide conservar la tipología constructiva tradicional con muros de carga perimetrales demoliendo las particiones interiores que en algún caso son portantes. Se levantan nuevos muros de carga aprovechando parte del cerramiento de mampostería en planta baja que se aíslan por el exterior en toda la envolvente. Las estructuras horizontales se ejecutan con viguería de madera.
En todo momento se buscan soluciones constructivas y materiales de bajo impacto ecológico, como aislamientos de corcho natural, acabados de madera vista, ventanas de madera.










