Rehabilitación vivienda adobe
LUGAR Y AÑO
Mazuecos de Valdeginate, Palencia. 2008
CATEGORÍA
Proyecto
DESCRIPCIÓN
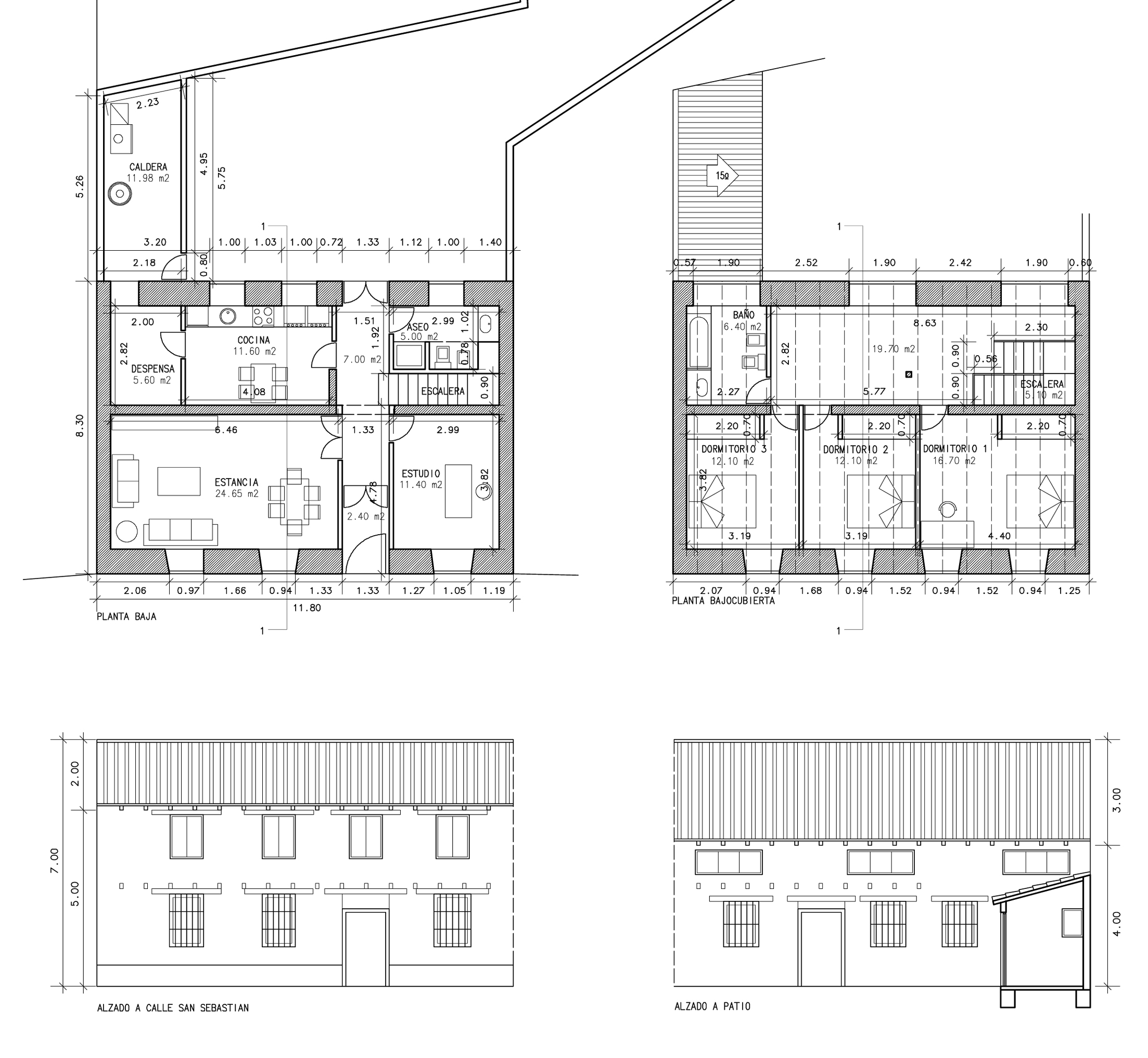
Una enorme casona de dos plantas y patio en un escasamente urbanizado.
La construcción estaba en buen estado estructural por lo que el proyecto sólo contempla la renovación de suelos y tabiques interiores aunque manteniendo la distribución original, sustituir la teja tradicional con teja recuperada, las ventanas por otras nuevas de madera y revestir el adobe y tapial exterior con cal aerea.
A la vez se proyectó la instalación de silo y caldera de biomasa y paneles solares en construcción anexa en patio.







